Sold for $69,300
1.1± Acre Commercial Site Plus .7± Acre Retention Pond Selling Together
3162 Acworth Forest Drive, Kennesaw, GA 30144 (Cobb County)
Online Only Auction
Bid Deadline: Wednesday, November 1 at 1:00 PM ET
Sale Manager: Julian E (Jeb) Howell, 770-841-9924, jeb@amcbid.com
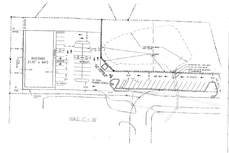
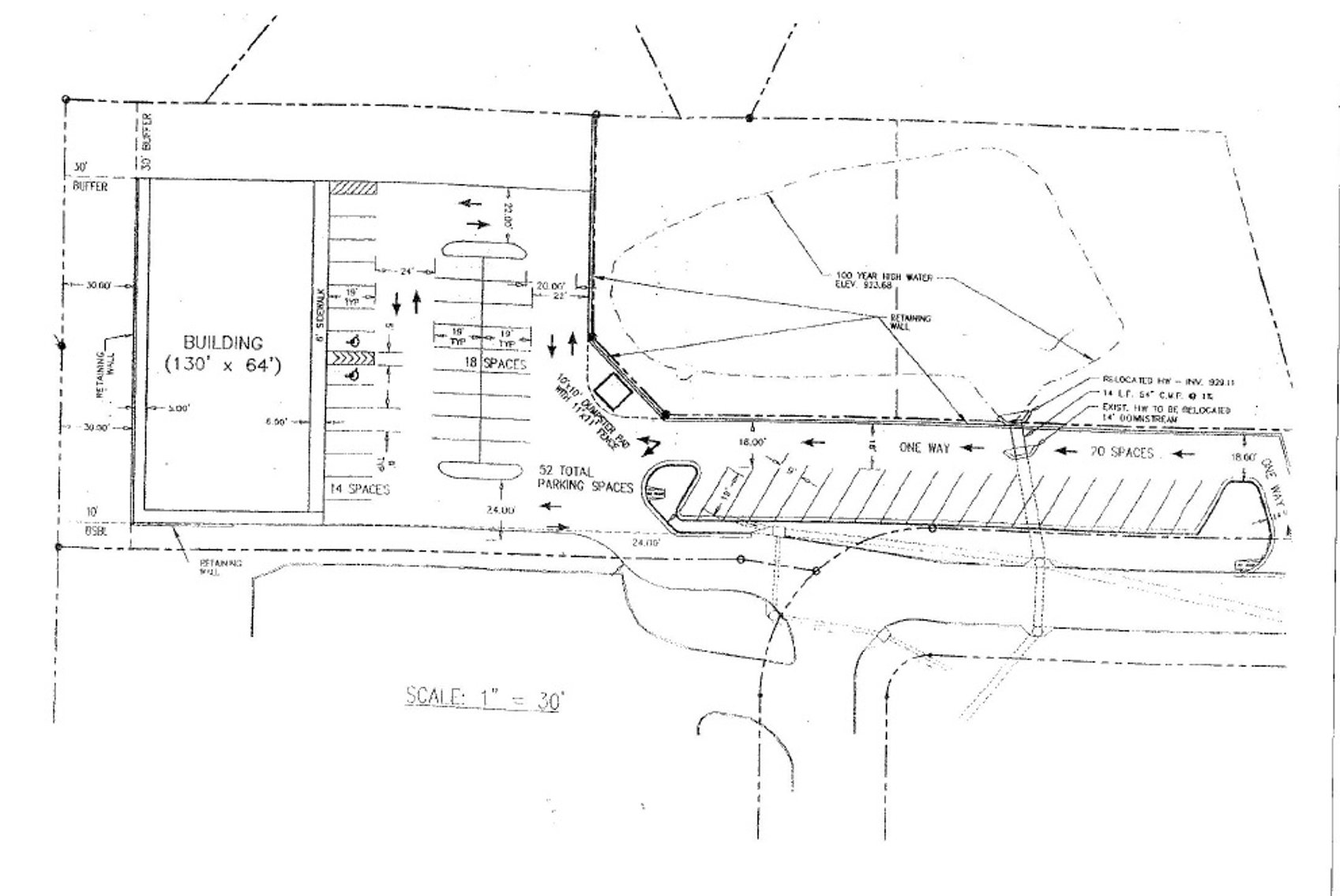
The property is within the City of Acworth and subject to Acworth ordinances but the mailing address is in Kennesaw. Level development site with hill slope at rear which can be used for fill where needed, although the developable area is already largely level. Site is directly behind and adjacent to Zaxby's restaurant in Creekside Business Park across US 41 from Wal-Mart Supercenter at 3105 Cobb Pkwy NW, Kennesaw, GA 30152. The site has 168 feet of frontage on Acworth Forest Drive which services the business park. It is zoned C-2 by the city of Acworth which allows for a variety of uses. The site is divided into two tracts, both under the same ownership control- a development tract, and a detention pond tract. The 1.1± acre development site is identified as Tax Parcel 20012401150 and is served by all utilities including sanitary sewer and sidewalks.
The development site partially bounds the walled .7 acre retention pond tract to the rear which services all of the sites within Creekside Business Park, known as Tax Parcel 20012401160. All parcel owners within the park are required to contribute to the maintenance of the detention pond pursuant to a Declaration of Drainage and Detention Pond Easements recorded 9/30/04 in accordance with their percentage of land area owned. This document is available for download from our website. The development site’s share of pond maintenance expenses is 8.3%.
The two sites were originally platted with the pond site having frontage on Acworth Forest Drive, but a portion of the pond tract was transferred to the development tract so that the development tract obtained all of the road frontage, and depth back to the edge of the physical pond.
The seller of the two tracts has owned the property in separate LLCs since 2004. Due to changes in his circumstances, he has made the decision to offer the property at public auction. The tracts will be sold together as one offering. This is your chance to purchase this prime piece of commercial real estate at the price it brings in competitive bidding ending on November 1st!
Terms: Property sells As-is, 10% Buyer’s Premium added to winning bid determines sales price, 10% of sales price due as earnest money, close by Friday, December 1st, Escrow and Closing Agent is Sylvia Morrow-Nocon, Attorney at Law, 678-325-3540.
AMC GAL #2503
Selling in Conjunction with: Jessee & Associates (770) 932-7021
AUCTION INFORMATION: All available material and updates are posted to www.amcbid.com . Due diligence materials, Auction Purchase and Sale Agreement, Broker Registration forms, and other information may be obtained by calling 770-980-9565, or by visiting the website.
BUYER'S PREMIUM: Property will be sold with a ten (10%) percent buyer's premium. The bid amount plus buyer's premium equals the final purchase price. For example: A $100,000 bid, plus the 10% ($10,000) buyer's premium, equals the $110,000 final purchase price.
AUCTION REGISTRATION: In order to register for the auction, you must have pre-inspected the property and must confirm that you have done your own inspection prior to registration. The online registration form will need to be completed before online bidding is enabled. In addition, you must provide proof of funds from your bank that you have sufficient funds to cover the required earnest money down payment in order to obtain a bid number. This may be accomplished by faxing the proof of funds to 770-980-9383, or emailing to info@amcbid.com . Proof of funds consists of a copy or fax of a current bank statement in bidder’s name showing sufficient funds for 10% earnest money deposit. YOU MUST BLANK OUT THE ACCOUNT NUMBER.
CONDUCT OF THE AUCTION: Online bidding will begin seven days prior to the auction. Online bidders may register to bid at our website at www.AMCbid.com no later than 24 hours prior to the auction. See Auction Registration section above. The auction ends when the highest bid is recognized by the auctioneer. Any bid within the last five minutes of the bid deadline causes an automatic extension of bidding. This feature is in place partially to prevent "sniping" which can occur on online auctions with a hard deadline. It recreates the action of a "Live Auction". If your opponent bids in the waning seconds of the auction, you still get another chance to bid. With that in mind, don't wait out the bid until the last second, as it can put you at risk for not getting your bid in before the 5-minute clock runs out.
EARNEST MONEY REQUIREMENT: Immediately following the auction, the successful bidder must deliver earnest money in locally drawn personal or business check immediately following the auction, in the amount of ten (10%) of the purchase price (calculated by adding the high bid amount plus a 10% buyer’s premium) to the Escrow Agent, Sylvia Morrow-Nocon, by wire transfer. Balance will be paid in full at closing.
PURCHASING AND CLOSING: Buyer shall execute an Auction Purchase and Sale Agreement (“Auction PSA”) for the property immediately after being declared the successful bidder by auctioneer. A form Auction PSA is available at our website and at the auction site prior to the auction. The Auction PSA which Buyer must sign at the auction contains an acknowledgment that Buyer has inspected the property prior to the auction, is relying solely on his/her inspection, and is purchasing the property As Is with all faults and without reliance on any warranty of any kind whatsoever. NO CHANGES WILL BE MADE TO SAID AUCTION PSA OR ANY EXHIBITS ATTACHED THERETO, AND BUYER WILL BE OBLIGATED TO EXECUTE AND DELIVER SAID AUCTION PSA ON AUCTION DAY. Provided, however, Seller reserves the right to modify or amend said Auction PSA, to complete blank sections, to attach appropriate exhibits, and to comply with state and local laws as may be enacted or amended from time to time. Closing must occur no later than Friday, December 1, 2017 unless extended in writing by mutual consent of the parties. Balance of purchase price will be paid in full at closing. Buyer not closing within the contractual time period to close will forfeit his/her earnest money deposit.
BROKER PARTICIPATION INVITED: A broker commission of one (1%) of the winning bid will be paid to the properly licensed broker whose prospect purchases and closes on the real estate. To qualify for a commission, the Broker must register by mail, email, fax or hand delivery the prospect’s name and address on the Broker Registration form available as a download at the AMC website listing for this asset prior to bidder registration. The form must be signed by the prospect and the Broker, and must be received at the office of Auction Management Corporation no later than 24 hours prior to the auction date and time. Broker must also sign the Auction PSA if their client is the winning bidder. Commissions to be paid only upon closing. A Broker or their immediate family cannot act as a principal and a broker on the same transaction. In the event a Prospect makes initial contact with Auctioneer, a Broker Registration will be disqualified.
FINANCING: Please note that financing is NOT a contingency of this transaction. Because financing is NOT a contingency, all potential bidders must make certain in advance that they are capable of obtaining the necessary financing to close the transaction.
PLATS/SKETCHES/DRAWINGS AND PHOTOS: Are not to be relied on. Existing legal descriptions are not guaranteed for complete accuracy. All acreage and dimensions are approximate and could be subject to change upon an actual field survey. All stakes, signs or flags indicating boundaries or location are for general location purposes only and are not to be construed as precise property corners.
AUCTION POWER OF ATTORNEY: For interested bidders who cannot attend the auction but would like to have a representative bid at the auction on their behalf, an Auction Power of Attorney can be obtained by contacting the Auction Information Office at (770) 980-9565, or emailing the request to info@amcbid.com .
TITLE: Property sold is subject to all matters of record, including, without limitation, recorded easements, existing roads and planned roads, power line and other utility easements, ingress and egress easements, and other easements of record.
BUYER'S NOTE: Auctioneer reserves the right to add or delete property from this auction or to alter the order of sale from that published herein. Failure to inspect property prior to auction does not relieve purchaser of contractual obligations of purchase. Property sells As Is - Where Is with no warranties expressed or implied. Real property to be conveyed by Limited Warranty Deed. Sale shall be closed at the office of Sylvia K Morrow, 678-325-3540, (“Escrow and Closing Agent”), as noted in Auction PSA, or as announced at the auction. Closing may occur remotely through overnite, email, and wire transfer. Each party shall pay its own attorneys’ fees. Only the following sale closing costs will be paid by Seller: (1) Commissions or brokerage fees to auctioneer and/or cooperating Brokers as set forth in separate agreement with auctioneer, and as established in these Terms and Conditions; (2) reasonable title corrective expenses, in Seller’s sole determination; (3) 0% of closing fees charged by Closing Agent; and (4) Prorated property taxes as set forth in the Purchase and Sale Agreement and back taxes due, if any. All other closing costs, including but not limited to surveys, title examination, title insurance, transfer taxes, 100% of escrow and closing fees charged by Escrow and Closing Agent, loan closing costs, and purchaser’s attorney fees are at the expense of the Buyer.
Information was gathered from reliable sources and is believed to be correct as of the date this material is published, however, this information has not been independently verified by sellers or auctioneers. Its accuracy is not warranted in any way. There is no obligation on the part of Sellers or Auctioneer to update this information. ALL ANNOUNCEMENTS MADE AT THE AUCTION TAKE PRECEDENCE OVER ALL ADVERTISING. The sellers do not have any liabilities whatsoever for any oral or written representations, warranties or agreements relating to the property except as expressly set forth in the Auction PSA. Unless advertised and promoted as an Absolute Auction, all assets herein are sold subject to Seller confirmation. Seller and its agents reserve the right to bid up to the amount of Seller’s published or unpublished reserve price, at Seller’s sole option. There is no obligation on the part of the Sellers to accept any backup bids in the event the high bid falls through.

.png)