Click HERE to Register & Bid Now!
AUCTION REGISTRATION: In order to register for the auction, you must have pre-inspected the property and must confirm that you have done your own inspection prior to registration. You must provide proof of funds from your bank showing sufficient funds to cover the required 10% earnest money down payment in order to obtain a bid number. This may be accomplished by faxing the proof of funds to 770-980-9383 or emailing to info@amcbid.com in advance of the auction. Proof of funds consists of a copy, fax, or scanned pdf of a current bank statement in bidder’s name showing sufficient funds for earnest money deposit. If you are unable to provide these in advance, please contact the auctioneer for instructions.
AUCTION INFORMATION & OFFICES: All available material and updates are posted to www.AMCbid.com. Due diligence materials, Auction Purchase and Sale Agreement, Broker Registration forms, and other information may be obtained by calling 770-980-9565, or by visiting our website.
CONDUCT OF THE AUCTION: Register to bid at our website at www.AMCbid.com . Online bidding will begin two weeks prior to the auction. The auction ends when the highest bid is recognized by the auctioneer.
The bid deadline for the asset is Wednesday, May 24 at 11:00 AM ET. Any bids placed within 5 minutes of the deadline will extend the deadline for 5 minutes. The bidding continues until 5 minutes pass with no additional bidding.
TERMS OF SALE FOR REAL ESTATE: Winning bidders will pay an earnest money deposit of ten (10%) of the purchase price (bid amount plus buyer’s premium). Upon conclusion of the bidding, Buyer will sign an Auction Purchase and Sale Agreement (“PSA”), and must submit earnest money deposit in the form of a wire transfer to seller-designated escrow agent (See Auction Purchase & Sale Agreement). The earnest money deposit is non-refundable.
Closing must occur no later than Friday, June 23, 2017 unless extended in writing by mutual consent of the parties. Buyer not closing within the contractual time period to close may forfeit his/her earnest money deposit. Buyer shall execute an Auction Purchase and Sale Agreement for the property immediately after being declared the successful bidder by Auctioneer. A form Auction PSA is available at our website and at the auction site prior to the auction. The Auction PSA which Buyer must sign at the auction contains an acknowledgment that Buyer has inspected the property prior to the auction, is relying solely on his/her inspection, and is purchasing the property As Is with all faults and without reliance on any warranty of any kind whatsoever. NO CHANGES WILL BE MADE TO SAID AUCTION PSA OR ANY EXHIBITS ATTACHED THERETO, AND BUYER WILL BE OBLIGATED TO EXECUTE AND DELIVER SAID AUCTION PSA ON AUCTION DAY. Provided, however, Seller reserves the right to modify or amend said Auction PSA, to complete blank sections, to attach appropriate exhibits, and to comply with state and local laws as may be enacted or amended from time to time. All payments (i.e., Earnest Money, Closing Funds) must be in the form of wire transfer only.
BUYER'S PREMIUM: Property will be sold with a ten (10%) percent buyer's premium. The bid amount plus buyer's premium equals the final purchase price. For example: A $100,000 bid, plus the 10% ($10,000) buyer's premium, equals the $110,000 final purchase price.
FINANCING: Please note that financing is NOT a contingency of this transaction. Because financing is NOT a contingency, all potential bidders must make certain in advance that they are capable of obtaining the necessary financing to close the transaction.
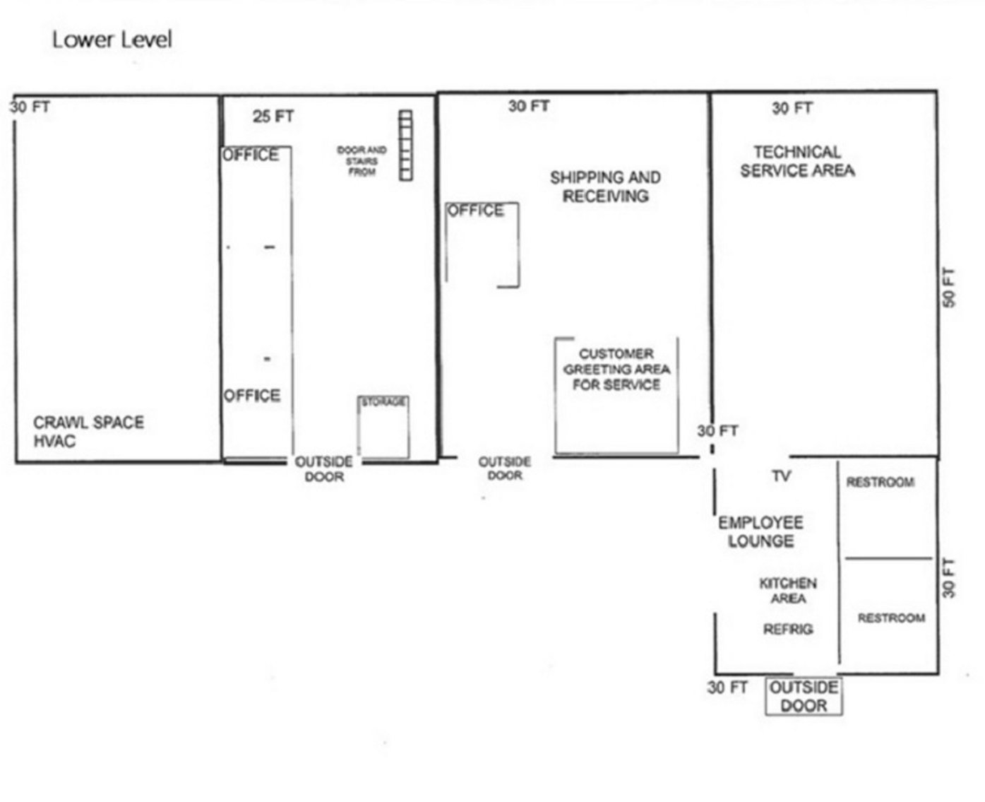
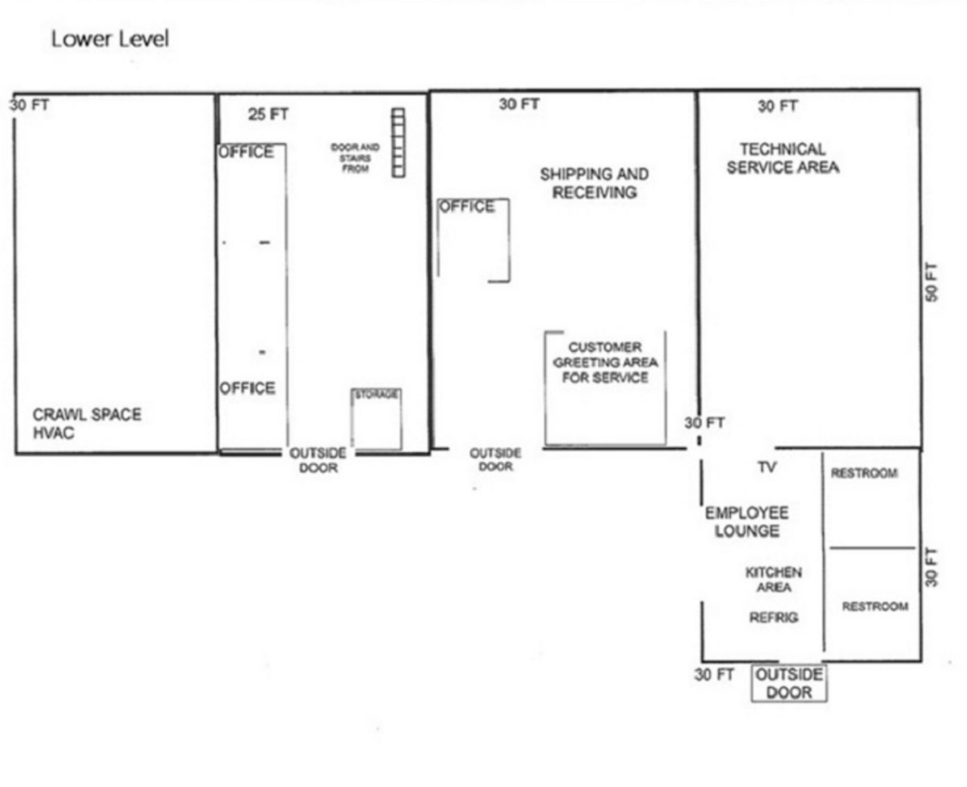
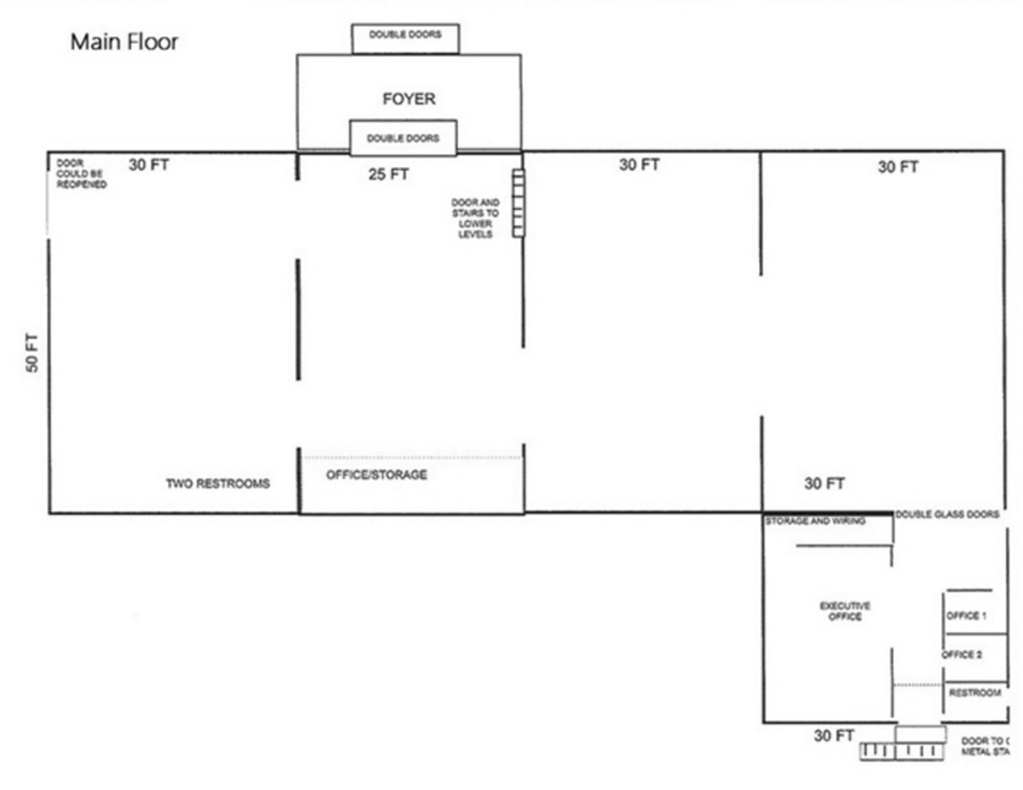
PLATS/SKETCHES/DRAWINGS AND PHOTOS: Are not to be relied on. Existing legal descriptions are not guaranteed for complete accuracy. All acreage and dimensions are approximate and could be subject to change upon an actual field survey. All stakes, signs or flags indicating boundaries or location are for general location purposes only and are not to be construed as precise property corners.
BROKER PARTICIPATION INVITED: Unless noted otherwise in property listing or herein, a broker commission of two (2%) of the Winning Bid will be paid on real estate. A commission will only be paid to the properly licensed broker whose prospect purchases and closes on the real estate. To qualify for a commission, the Broker must register by mail, email, fax or hand delivery using the Broker Registration/ Opening Bid form posted to the website for the property listing prior to bidder registration. The registration form must be signed by the prospect and the Broker, and must be received at an office of Auction Management Corporation no later than 5:00 PM two (2) days prior to each bid deadline via fax or mail. In no case will a broker registration be accepted after a bidder has registered. If bidder bids onsite, Broker must also attend the auction and sign the Auction Real Estate Sales Contract if their client is the winning bidder. Commissions to be paid only upon closing. A Broker cannot act as a principal and a broker on the same transaction.
AUCTION POWER OF ATTORNEY: For interested bidders who cannot attend the auction but would like to have a representative bid at the auction on their behalf, an Auction Power of Attorney can be obtained by contacting the Auction Information Office at (770) 980-9565.
TAX EXCHANGE: Sellers and Purchasers agree that certain Sellers may effectuate 1031 Tax Exchanges on certain properties sold herein. Buyers will agree to cooperate and execute necessary documents to enable Sellers to consummate said transactions.
EASEMENTS: All property sold is subject to recorded easements which include existing roads and planned roads, power line and other utility easements, ingress and egress easements, and other easements of record.
BUYER'S NOTE: Auctioneer reserves the right to add or delete property from this auction or to alter the order of sale from that published herein. Auctioneer reserves the right to convert the bidding platform from an online to an onsite bidding platform. Auctioneer is not responsible for bidding errors caused by internet outages, bid platform failures, or power failures. Bid increments and bidding methodology are subject to change at the sole discretion of auctioneer.
Personal on-site inspection of the property is strongly recommended. Failure to inspect property prior to auction does not relieve purchaser of contractual obligations of purchase. Property sells As Is - Where Is with no warranties expressed or implied. Real property to be conveyed by Limited Warranty Deed. Only the following sale closing costs will be paid by seller: (1) Commissions or brokerage fees to auctioneer and/or cooperating Brokers as set forth in separate agreement with auctioneer, and as established in these Terms and Conditions; (2) reasonable title corrective expenses, in Seller’s sole determination; and (3) Prorated property taxes and back taxes due, if any. All other closing costs, including but not limited to surveys, title examination, loan closing costs, and closing attorney fees are at the expense of the Buyer. Sale shall be closed at the offices of Seller’s Designated Closing Agent (“Closing Agent”), as noted in Auction Purchase & Sale Agreement, or as announced at the auction.
Closing costs shall be paid in accordance with the Auction PSA, posted to the website.
Information was gathered from reliable sources and is believed to be correct as of the date this material is published, however, this information has not been independently verified by sellers or auctioneers. Its accuracy is not warranted in any way. There is no obligation on the part of Sellers or Auctioneer to update this information. ALL ANNOUNCEMENTS MADE AT THE AUCTION TAKE PRECEDENCE OVER ALL ADVERTISING. The sellers do not have any liabilities whatsoever for any oral or written representations, warranties or agreements relating to the property except as expressly set forth in the Auction PSA. There is no obligation on the part of the Sellers to accept any backup bids in the event the high bid falls through.
