Sold for $168,300
1456 Drayton Woods Drive, Tucker, GA 30084 (DeKalb County)
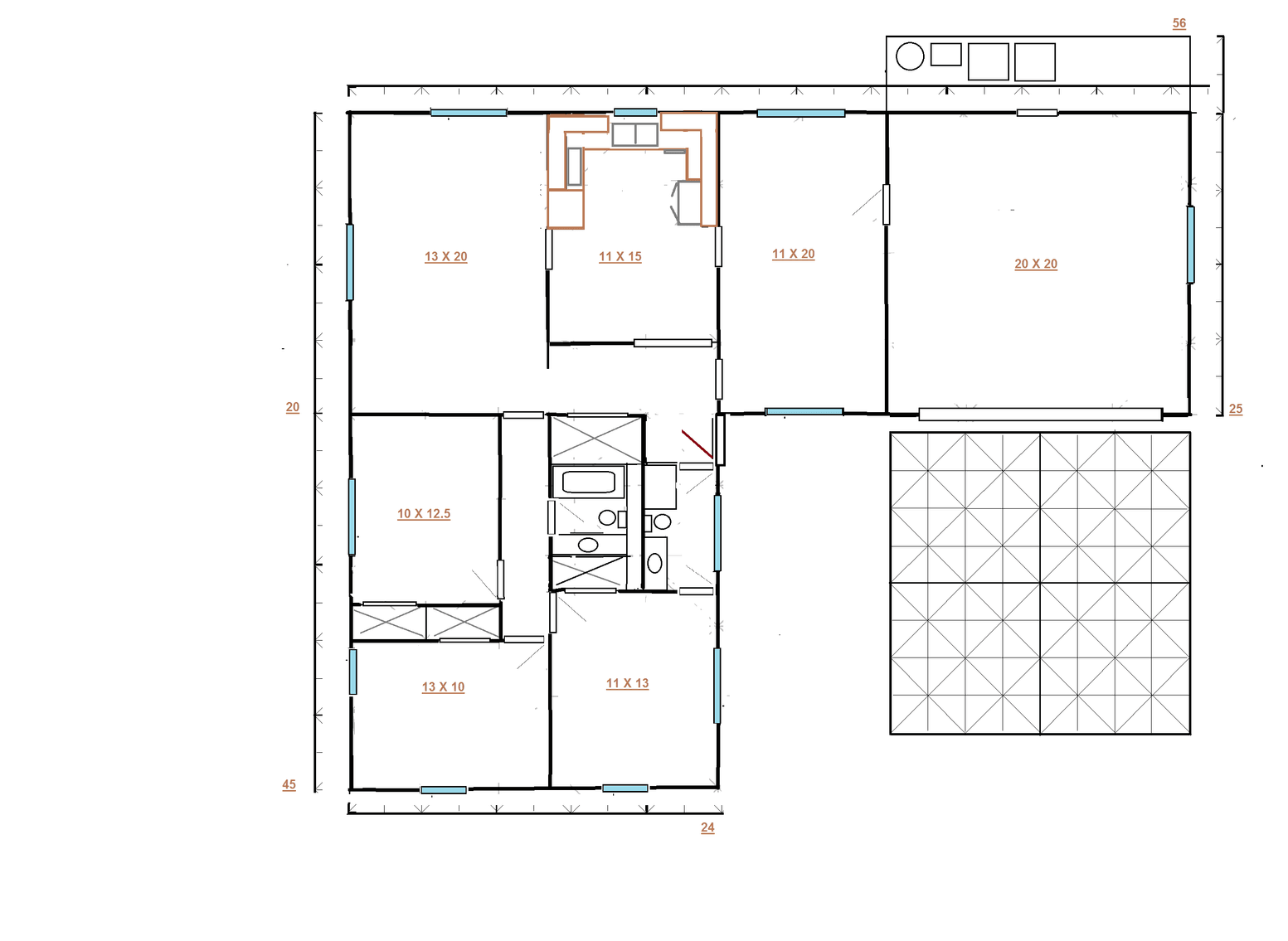
3BR/2BA Single Story SFR on .6± Acre Built in 1967
Live Onsite Auction with Online Bidding
Tuesday, October 15 at 7:00 PM
Tuesday, October 15 at 7:00 PM
Inspections:
Saturday, September 28 from 10 AM - 2 PM
Sunday October 13 from 1 PM - 4 PM
Auction Day from 10 AM - Noon & 5 PM - Auction begins at 7 PM
You may also contact us to schedule an appointment.
Sale Manager: Amy Martin, 404-734-3606 or Amy@AMCbid.com
Saturday, September 28 from 10 AM - 2 PM
Sunday October 13 from 1 PM - 4 PM
Auction Day from 10 AM - Noon & 5 PM - Auction begins at 7 PM
You may also contact us to schedule an appointment.
Sale Manager: Amy Martin, 404-734-3606 or Amy@AMCbid.com
Property Description:
This property features 3BR/2BA in 1,544±SF of living space with hardwood floors throughout, eat-in kitchen, large bonus room and open living room/dining room. The property is on county water/sewer, has central heat and air, a 399±SF attached two-car garage, and an unfinished walkout basement on over half an acre. There is a small 112±SF open porch on the front and a 112±SF wooden deck accessed by sliding glass doors from the bonus room on the side of the home with stairs toward the back yard. The lot measures approx 85 ft across the front and 90 ft across the back with the sides running 338 ft and 335 ft bordering on South Fork Peachtree Creek at the back of the lot.
The home is within walking distance to Drayton Wood Recreation Club park and community pool and play area.
The home is within walking distance to Drayton Wood Recreation Club park and community pool and play area.
Dekalb County PID# 18 140 01 040
2019 Taxes with total $1,962.20/ Homestead & Senior Exemption savings = $1,148.46
Tucker GA: 3BR/ 2BA at 1456 Drayton Woods Dr. Tucker, GA 30084 (DeKalb County) from YourViewMyCamera on Vimeo.
Elementary School: Idlewood
Middle School: Tucker
High School: Tucker
Terms: Bank Proof of Funds Required to Bid, 10% Buyer’s Premium added to winning bid to determine sale price, 10% EM Deposit, close by November 15, 2019. Home sells as-is, where-is, with no reps or warranties Transfer will be by Warranty deed. Seller provides insurable title. Buyer to pay all closing costs. You may have the home inspected at your own expense. We will be glad to meet your inspector to accommodate access. Please see 2016 inspection report and all due diligence on our website
Financing is allowed but will not be a contingency of sale.
Middle School: Tucker
High School: Tucker
Terms: Bank Proof of Funds Required to Bid, 10% Buyer’s Premium added to winning bid to determine sale price, 10% EM Deposit, close by November 15, 2019. Home sells as-is, where-is, with no reps or warranties Transfer will be by Warranty deed. Seller provides insurable title. Buyer to pay all closing costs. You may have the home inspected at your own expense. We will be glad to meet your inspector to accommodate access. Please see 2016 inspection report and all due diligence on our website
Financing is allowed but will not be a contingency of sale.
Brokers welcome! Broker Co-Op fee equivalent to 20% of AMC commission paid to qualified agents. Broker registration form, available on our website must be received 48 hrs prior to auction. A Broker cannot act as a principal and a broker on the same transaction. See terms for details.
PRE-AUCTION OFFERS: Must be on cash terms using auction contract posted on our site and must be submitted to Auctioneer no later than 48 hours prior to the auction. If we receive an acceptable offer before the auction Auctioneer will contact all registered bidders to acknowledge such and give all interested parties a 3-day window to submit offers. In the case that a higher offer is received the extension clock will reset for three days. This extension will continue until no better offers are received. In the case of an accepted pre-auction contract, the closing will be set no later than 30 days from the date of a fully executed PSA (auction contract). All contracts must be accompanied with a 10% earnest money deposit wired to the Escrow agent within 24 hrs.
Transfer will be by Limited Warranty deed. Seller is providing insurable title.
Transfer will be by Limited Warranty deed. Seller is providing insurable title.
CLOSING: Closing is to occur at the offices of Mimi McCain, Esq. (678) 606-9868 GANEK WRIGHT MINSK PC at 675 N. Highland, Suite 400 Atlanta, Georgia 30306.
AMC GAL#2503
GENERAL AUCTION TERMS AND CONDITIONS
AUCTION REGISTRATION: In order to register for the auction, you must have pre-inspected the property and must confirm that you have done your own inspection prior to registration. You must provide proof of funds from your bank that you have sufficient funds to cover the required earnest money down payment in order to obtain a bid number. This may be accomplished by faxing the proof of funds to 770-980-9383 or emailing to info@AMCbid.com.
PROPERTY INSPECTION: As noted in the Property Listing or contact listed AMC Sale Manager for inspection instructions.
BROKER PARTICIPATION INVITED: Unless noted otherwise in property listing or herein, Broker Co-Op fee equivalent to 20% of AMC commission will be paid on real estate. A commission will be paid to the properly licensed broker whose prospect purchases and closes on the real estate. To qualify for a commission, the Broker must register by mail, email, fax or hand delivery using the Broker Registration form posted to the website for the property listing prior to bidder registration. The registration form must be signed by the prospect and the Broker, and must be received byAuction Management Corporation no later than 5:00 PM two (2) days prior to each bid deadline via fax or mail. If winning bidder is onsite, Broker must also attend the auction and must sign the Auction Real Estate Sales Contract. Commissions to be paid only upon closing. A Broker cannot act as a principal and a broker on the same transaction.
AUCTION INFORMATION OFFICES: The auction information office is located at 1827 Powers Ferry Road, Building 5, Atlanta, Georgia 30339, phone (770) 980-9565. Fax: (770) 980-9383. Brochures, Auction Purchase and Sale Agreements, and other information may be obtained by calling the office, or by visiting our website at www.AMCbid.com.
CONDUCT OF THE AUCTION: Online bidding will begin approximately one week prior to the bid deadline. Onsite bidders may place their bids at the indicated auction time. The auction will be conducted via live webcast so that bidders unable to attend may bid in real time through our webcast at www.AMCbid.com. The auction ends when the highest bid is recognized by the Auctioneer. Bid increments and bidding methodology are subject to change at the sole discretion of Auctioneer.
TERMS OF SALE FOR REAL ESTATE: Winning bidder will pay an initial earnest money deposit of ten percent (10%) of the purchase price (bid amount plus buyer’s premium). Upon conclusion of the bidding, Purchaser will sign an Auction Purchase and Sale Agreement (“PSA”) with no changes. Purchaser will also submit the non-refundable earnest money deposit to the Auction Management Corporation Escrow Account immediately after the auction. Online Purchaser will be provided with wiring instructions.
Closing must occur no later than Thursday, November 15th, 2019 at 5:00 PM unless extended in writing by mutual consent of the parties. Purchaser not closing within the contractual time period to close may forfeit his/her earnest money deposit. Purchaser shall execute an Auction Purchase and Sale Agreement for the property immediately after being declared the successful bidder by Auctioneer. A form Auction PSA is available at our website and at the auction site prior to the auction. The Auction PSA which Purchaser must sign at the auction contains an acknowledgment that Purchaser has inspected the property prior to the auction, is relying solely on his/her inspection, and is purchasing the property As Is with all faults and without reliance on any warranty of any kind whatsoever. NO CHANGES WILL BE MADE TO SAID AUCTION PSA OR ANY EXHIBITS ATTACHED THERETO, AND PURCHASER WILL BE OBLIGATED TO EXECUTE AND DELIVER SAID AUCTION PSA ON AUCTION DAY. Provided, however, Seller reserves the right to modify or amend said Auction PSA, to complete blank sections, to attach appropriate exhibits, and to comply with state and local laws as may be enacted or amended from time to time.
Seller states that Seller presently has title to said property, and at the time the sale is consummated agrees to convey insurable title to said Property to Purchaser by Limited Warranty deed, subject only to (1) all title matters of record as of the date of closing, (2) matters affecting title that would be disclosed by an accurate survey of the property, and (3) all taxes not yet due and payable. In the event there are leases on the property, Purchaser agrees to assume Seller's responsibility thereunder to the tenant(s) and broker(s) who negotiated such leases. Purchaser shall have a reasonable time to examine title and to furnish Seller a written statement of objections affecting the insurability of said title.
Should Purchaser fail to furnish Seller with a written statement of objections within the time allotted, and then Purchaser shall be deemed to have accepted title as is. Seller shall have forty-five (45) days after receipt of such objections to satisfy all valid objections and, if Seller fails to satisfy such valid objections within said forty-five (45) days, then at the option of Purchaser, evidenced by written notice to Seller, this contract shall be null and void, and Purchaser’s earnest money shall be returned or Purchaser shall accept the title with the exceptions and Purchaser shall have no further claims against the Seller whatsoever.
Seller shall pay Auctioneer’s commission and prorated portion of 2019 Real Estate taxes. Purchaser shall pay prorated portion of 2019 Real Estate taxes and all other closing costs including tax stamps, transfer tax, recording fees, title search, title insurance (optional), and closing attorney fees and escrow fees charged by Attorney and all of Purchaser’s attorney fees (should Purchaser choose representation). Sale shall be closed on or before Thursday, November 15th, 2019, or on or before 10 days following Seller’s satisfaction of valid title objections (supra), if applicable, whichever shall last occur.
Sale shall be closed at the offices of Seller’s Designated Closing Attorney (“Attorney”), Mimi McCain, Esq. (678) 606-9868 GANEK WRIGHT MINSK PC at 675 N. Highland, Suite 400 Atlanta, Georgia 30306.
Purchaser shall pay all closing costs including tax stamps, transfer tax, title search, title insurance (optional), 100% of closing attorney fees and escrow fees charged by GANEK WRIGHT MINSK PC, and all of Purchaser’s attorney fees (should Purchaser choose representation).
Seller agrees to pay prorated portion of current year taxes and any title corrective expenses.
Transfer will be by Limited Warranty Deed. All payments (i.e., Earnest Money, Closing Funds) must be in the form of cash, check, wire transfer or cashier’s check only.
Auctioneer is acting as agent for the Seller, not as Purchaser's agent. Time is of the essence.
BUYER'S PREMIUM: Property will be sold with a ten percent (10%) buyer's premium. The bid amount plus buyer's premium equals the final purchase price. For example: A $100,000 bid, plus the $10,000 buyer's premium, equals the $110,000 final purchase price.
FINANCING: Please note that financing is NOT a contingency of this auction. Because financing is NOT a contingency, all potential bidders must make certain in advance that they are capable of obtaining the necessary financing to close the transaction.
PLATS/SKETCHES/DRAWINGS AND PHOTOS: Are not to be relied on. Existing legal descriptions are not guaranteed for complete accuracy. All acreage and dimensions are approximate and could be subject to change upon an actual field survey. All stakes, signs or flags indicating boundaries or location are for general location purposes only and are not to be construed as precise property corners.
KEYS: Neither Auctioneer nor Seller warrant key availability on any property. If available, keys will be provided at closing. However, Purchaser is strongly advised to re-key the property immediately after closing.
AUCTION POWER OF ATTORNEY: For interested bidders who cannot attend the auction but would like to have a representative bid at the auction on their behalf, an Auction Power of Attorney can be obtained by contacting the Auction Information Office at (770) 980-9565.
TAX EXCHANGE: Seller and Purchaser agree that Seller may effectuate 1031 Tax Exchanges on the property sold herein. Purchaser will agree to cooperate and execute the necessary documents to enable Seller to consummate said transactions.
PRE-AUCTION OFFERS: Must be on cash terms using auction contract posted on our site and must be submitted to Auctioneer no later than 48 hours prior to the auction. If we receive an acceptable offer before the auction Auctioneer will contact all registered bidders to acknowledge such and give all interested parties a 3-day window to submit offers. In the case that a higher offer is received the extension clock will reset for three days. This extension will continue until no better offers are received. In the case of an accepted pre-auction contract, the closing will be set no later than 30 days from the date of a fully executed PSA (auction contract). All contracts must be accompanied with a 10% earnest money deposit wired to the Escrow agent within 24 hrs.
PRE-AUCTION OFFERS: Must be on cash terms using auction contract posted on our site and must be submitted to Auctioneer no later than 48 hours prior to the auction. If we receive an acceptable offer before the auction Auctioneer will contact all registered bidders to acknowledge such and give all interested parties a 3-day window to submit offers. In the case that a higher offer is received the extension clock will reset for three days. This extension will continue until no better offers are received. In the case of an accepted pre-auction contract, the closing will be set no later than 30 days from the date of a fully executed PSA (auction contract). All contracts must be accompanied with a 10% earnest money deposit wired to the Escrow agent within 24 hrs.
EASEMENTS: All property sold is subject to recorded easements which include existing roads and planned roads, power line and other utility easements, ingress and egress easements, and other easements of record.
PURCHASER'S NOTE: Personal on-site inspection of the property is strongly recommended. Failure to inspect property prior to auction does not relieve purchaser of contractual obligations of purchase. Property sells As Is - Where Is with no warranties expressed or implied. Real property to be conveyed by limited or special warranty deed. Only the following sale closing costs will be paid by seller: (1) Commissions or brokerage fees to Auctioneer and/or cooperating Brokers as set forth in separate agreement with Auctioneer, and as established in these Terms and Conditions; (2) reasonable title corrective expenses, in Seller’s sole determination; and (3) Prorated 2017 property taxes and previous year back taxes due, if any. All other closing costs, including but not limited to real estate taxes surveys, title examination, tax stamps, loan closing costs, and closing attorney fees are at the expense of the Purchaser. Purchaser will pay all closing fees charged by closing attorney.
Information was gathered from reliable sources and is believed to be correct as of the date this brochure is published; however, this information has not been independently verified by sellers or auctioneers. Its accuracy is not warranted in any way. There is no obligation on the part of Seller or Auctioneer to update this information. ALL ANNOUNCEMENTS MADE AT THE AUCTION TAKE PRECEDENCE OVER ALL ADVERTISING. The seller does not have any liability whatsoever for any oral or written representations, warranties or agreements relating to the property except as expressly set forth in the Auction PSA. There is no minimum starting bid required on any unit. Bid increments are at the sole discretion of the Auctioneer. Property not indicated in the listings as selling regardless of price are sold with reserve. Bidder acknowledges that Seller and Auctioneer and their employees, agents, affiliates, and associates reserve the right to place bids on properties sold with reserve up to the seller’s reserve price, at their sole discretion. Neither Seller, Auctioneer, nor their representatives may bid above the reserve price. There is no obligation on the part of the Seller to accept any backup bids in the event the high bid falls through.
