Sold for $234,850
ALABAMA
Property #101
Online Only Absolute Auction
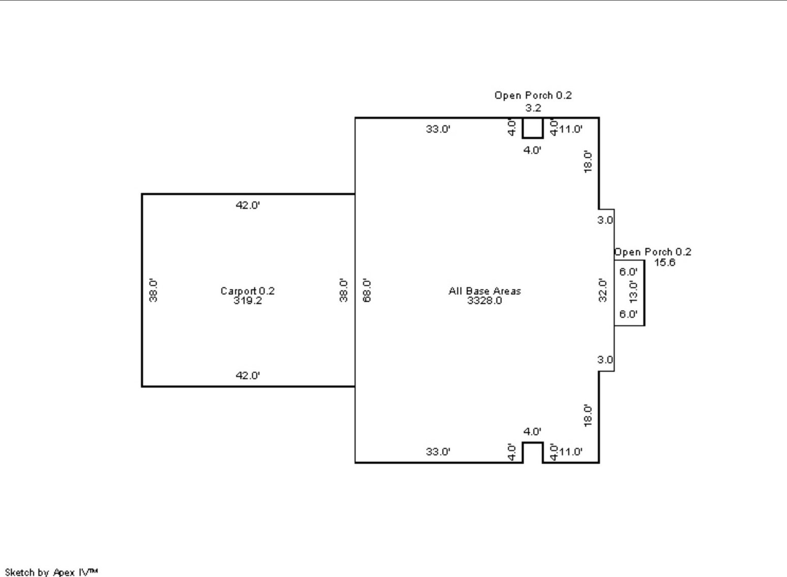
3,356±SF Former Bank Branch at 1718 Gault Avenue N., Fort Payne, AL 35967 (DeKalb County)
Bidding Opens: Monday, November 4 at 11:00 AM CT
Bid Deadline: Wednesday, November 13 at 11:00 AM CT
Inspection: Monday, November 11 at 12:00 Noon CT SHARP
Sale Manager: Jeb Howell, 404-408-5222 or info@amcbid.com
Property Description: 1718 Gault Avenue is a beautiful former bank building located at a signalized intersection on a main thoroughfare in Fort Payne, AL. The brick and stucco sided structure, with a metal roof, has 4 covered drive through lanes and 29 parking spaces and is situated on two parcels. The August 2019 survey indicates a footprint of 3,356± SF and the two parcels total .89 acres, with 241’± frontage and a curb cut on Gault Avenue, 249’± frontage and a curb cut on 18th St NW, and 71’± frontage on Grand Avenue to the rear. The site is near multiple restaurant and retail businesses with great ingress/egress and easy access from Gault Avenue and 18th Street.
A July 2019 Phase I Environmental Site Assessment has revealed no evidence of RECs, CRECs, HRECs, or VECs in connection with the subject property.
DeKalb County Parcels# 23-03-05-1-004-023.000 & 23-03-05-1-004-024.000
DeKalb County Appraised Value $13,800 & $552,920 = $566,720 Total
DeKalb County 2019 Taxes Due $124.20 & $4,976.10 = $5,100.30 Total
Terms: Proof of Funds Required to Bid, 10% Buyers Premium added to winning bid to determine sale price, Earnest Money Deposit 10% of Purchase Price, 1% Broker Co-Op, close in 20 days.
Julian E Howell, AL Auctioneers License #1682
AUCTION TERMS AND CONDITIONS:
AUCTION REGISTRATION: In order to register for the auctions, you must have pre-inspected the property and must confirm that you have done your own inspection prior to registration. You must provide proof of funds from your bank that you have sufficient funds to cover the required 10% earnest money down payment in order to obtain a bid number. This may be accomplished by faxing the proof of funds to 770-980-9383 or emailing to info@amcbid.com in advance of the auction. Proof of funds consists of a copy, fax, or scanned pdf of a current bank statement in bidder’s name with the account number blacked out showing sufficient funds for earnest money deposit. All registrations must be completed online at our website in advance of the auctions.
AUCTION INFORMATION & OFFICES: All available material and updates are posted to www.amcbid.com . Due diligence materials, Auction Purchase and Sale Agreement, Broker Registration forms, and other information may be obtained by calling 770-980-9565, or by visiting our websites.
BROKER PARTICIPATION INVITED: Unless noted otherwise in property listing or herein, a broker commission of one percent (1%) of the Winning Bid will be paid on real estate. A commission will only be paid to the properly licensed broker whose prospect purchases and closes on the real estate. To qualify for a commission, the Broker must register by mail, email, fax or hand delivery using the Broker Registration/ Written Opening Bid form posted to the website for the property listing prior to bidder registration. The registration form must be signed by the prospect and the Broker, and must be received at the office of Auction Management Corporation no later than 5:00 PM two (2) days prior to each bid deadline via fax or mail. In no case will a broker registration be accepted after a bidder has registered. If bidder bids onsite, Broker must also attend the auction and sign the Auction Real Estate Sales Contract if their client is the winning bidder. Commissions to be paid only upon closing. A Broker cannot act as a principal and a broker on the same transaction.
BROKER PARTICIPATION INVITED: Unless noted otherwise in property listing or herein, a broker commission of one percent (1%) of the Winning Bid will be paid on real estate. A commission will only be paid to the properly licensed broker whose prospect purchases and closes on the real estate. To qualify for a commission, the Broker must register by mail, email, fax or hand delivery using the Broker Registration/ Written Opening Bid form posted to the website for the property listing prior to bidder registration. The registration form must be signed by the prospect and the Broker, and must be received at the office of Auction Management Corporation no later than 5:00 PM two (2) days prior to each bid deadline via fax or mail. In no case will a broker registration be accepted after a bidder has registered. If bidder bids onsite, Broker must also attend the auction and sign the Auction Real Estate Sales Contract if their client is the winning bidder. Commissions to be paid only upon closing. A Broker cannot act as a principal and a broker on the same transaction.
CONDUCT OF THE AUCTION: Online bidding will begin ten days prior to the auction. The auction ends when the highest bid is recognized by the auctioneer. The auctions begin to end on Wednesday, November 13th at 11 AM CT/ 12 Noon ET. Any bid within the last five minutes of the bid deadline causes an automatic extension of bidding. All of the assets in the auction are in the same extension group, which means that a bid placed on any of the assets extends the bidding on all of the assets for 5 minutes. When 5 minutes passes with no bidding on any assets, the auction closes. Because bidders may bid on different assets, the auction could therefore continue for several minutes to an hour or two after the initial bid deadline. Bid increments and bidding methodology are subject to change at the sole discretion of Auctioneer.
TERMS OF SALE FOR REAL ESTATE: Winning bidders will pay an earnest money deposit of ten percent (10%) of the purchase price (bid amount plus buyer’s premium). Upon conclusion of the bidding, Buyer will sign an Auction Purchase and Sale Agreement (“PSA”), and must submit earnest money deposit in the form of a wire transfer to seller-designated escrow agent (See Auction Purchase & Sale Agreement). The earnest money deposit is non-refundable.
Closing must occur no later than 20 days from the auction date unless extended in writing by mutual consent of the parties. Buyer not closing within the contractual time period to close may forfeit his/her earnest money deposit. Buyer shall execute an Auction Purchase and Sale Agreement for the property immediately after being declared the successful bidder by auctioneer. A form Auction PSA is available at our website and at the auction site prior to the auction. The Auction PSA which Buyer must sign at the auction contains an acknowledgment that Buyer has inspected the property prior to the auction, is relying solely on his/her inspection, and is purchasing the property As Is with all faults and without reliance on any warranty of any kind whatsoever. NO CHANGES WILL BE MADE TO SAID AUCTION PSA OR ANY EXHIBITS ATTACHED THERETO, AND BUYER WILL BE OBLIGATED TO EXECUTE AND DELIVER SAID AUCTION PSA ON AUCTION DAY. Provided, however, Seller reserves the right to modify or amend said Auction PSA, to complete blank sections, to attach appropriate exhibits, and to comply with state and local laws as may be enacted or amended from time to time. All payments (ie, Earnest Money, Closing Funds) must be in the form of wire transfer only.
TERMS OF SALE FOR REAL ESTATE: Winning bidders will pay an earnest money deposit of ten percent (10%) of the purchase price (bid amount plus buyer’s premium). Upon conclusion of the bidding, Buyer will sign an Auction Purchase and Sale Agreement (“PSA”), and must submit earnest money deposit in the form of a wire transfer to seller-designated escrow agent (See Auction Purchase & Sale Agreement). The earnest money deposit is non-refundable.
Closing must occur no later than 20 days from the auction date unless extended in writing by mutual consent of the parties. Buyer not closing within the contractual time period to close may forfeit his/her earnest money deposit. Buyer shall execute an Auction Purchase and Sale Agreement for the property immediately after being declared the successful bidder by auctioneer. A form Auction PSA is available at our website and at the auction site prior to the auction. The Auction PSA which Buyer must sign at the auction contains an acknowledgment that Buyer has inspected the property prior to the auction, is relying solely on his/her inspection, and is purchasing the property As Is with all faults and without reliance on any warranty of any kind whatsoever. NO CHANGES WILL BE MADE TO SAID AUCTION PSA OR ANY EXHIBITS ATTACHED THERETO, AND BUYER WILL BE OBLIGATED TO EXECUTE AND DELIVER SAID AUCTION PSA ON AUCTION DAY. Provided, however, Seller reserves the right to modify or amend said Auction PSA, to complete blank sections, to attach appropriate exhibits, and to comply with state and local laws as may be enacted or amended from time to time. All payments (ie, Earnest Money, Closing Funds) must be in the form of wire transfer only.
BUYER'S PREMIUM: Property will be sold with a ten percent (10%) buyer's premium. The bid amount plus buyer's premium equals the final purchase price. For example: A $100,000 bid, plus the 10% ($10,000) buyer's premium, equals the $110,000 final purchase price.
FINANCING: Please note that financing is NOT a contingency of this transaction. Because financing is NOT a contingency, all potential bidders must make certain in advance that they are capable of obtaining the necessary financing to close the transaction.
PLATS/SKETCHES/DRAWINGS AND PHOTOS: Are not to be relied on. Existing legal descriptions are not guaranteed for complete accuracy. All acreage and dimensions are approximate and could be subject to change upon an actual field survey. All stakes, signs or flags indicating boundaries or location are for general location purposes only and are not to be construed as precise property corners.
AUCTION POWER OF ATTORNEY: For interested bidders who cannot attend the auction but would like to have a representative bid at the auction on their behalf, an Auction Power of Attorney can be obtained by contacting the Auction Information Office at (770) 980-9565.
EASEMENTS: All property sold is subject to recorded easements which include existing roads and planned roads, power line and other utility easements, ingress and egress easements, and other easements of record.
BUYER'S NOTE: Auctioneer reserves the right to add or delete property from this auction or to alter the order of sale from that published herein. Auctioneer reserves the right to convert the bidding platform from an online to an onsite bidding platform if no bidders register and submit required bid deposit by the online bidding deadline. Personal on-site inspection of the property is strongly recommended. Failure to inspect property prior to auction does not relieve purchaser of contractual obligations of purchase. Property sells As Is - Where Is with no warranties expressed or implied. Real property to be conveyed by Special or Limited Warranty Deed. Only the following sale closing costs will be paid by seller: (1) Commissions or brokerage fees to auctioneer and/or cooperating Brokers as set forth in separate agreement with auctioneer, and as established in these Terms and Conditions; (2) reasonable title corrective expenses, in Seller’s sole determination; and (3) Prorated property taxes and back taxes due, if any. All other closing costs, including but not limited to surveys, title examination, loan closing costs, and purchaser’s attorney fees are at the expense of the Buyer. Sale shall be closed at the offices of Seller’s Designated Closing Agent (“Closing Agent”), as noted in Auction Purchase & Sale Agreement, or as announced at the auction.
FINANCING: Please note that financing is NOT a contingency of this transaction. Because financing is NOT a contingency, all potential bidders must make certain in advance that they are capable of obtaining the necessary financing to close the transaction.
PLATS/SKETCHES/DRAWINGS AND PHOTOS: Are not to be relied on. Existing legal descriptions are not guaranteed for complete accuracy. All acreage and dimensions are approximate and could be subject to change upon an actual field survey. All stakes, signs or flags indicating boundaries or location are for general location purposes only and are not to be construed as precise property corners.
AUCTION POWER OF ATTORNEY: For interested bidders who cannot attend the auction but would like to have a representative bid at the auction on their behalf, an Auction Power of Attorney can be obtained by contacting the Auction Information Office at (770) 980-9565.
EASEMENTS: All property sold is subject to recorded easements which include existing roads and planned roads, power line and other utility easements, ingress and egress easements, and other easements of record.
BUYER'S NOTE: Auctioneer reserves the right to add or delete property from this auction or to alter the order of sale from that published herein. Auctioneer reserves the right to convert the bidding platform from an online to an onsite bidding platform if no bidders register and submit required bid deposit by the online bidding deadline. Personal on-site inspection of the property is strongly recommended. Failure to inspect property prior to auction does not relieve purchaser of contractual obligations of purchase. Property sells As Is - Where Is with no warranties expressed or implied. Real property to be conveyed by Special or Limited Warranty Deed. Only the following sale closing costs will be paid by seller: (1) Commissions or brokerage fees to auctioneer and/or cooperating Brokers as set forth in separate agreement with auctioneer, and as established in these Terms and Conditions; (2) reasonable title corrective expenses, in Seller’s sole determination; and (3) Prorated property taxes and back taxes due, if any. All other closing costs, including but not limited to surveys, title examination, loan closing costs, and purchaser’s attorney fees are at the expense of the Buyer. Sale shall be closed at the offices of Seller’s Designated Closing Agent (“Closing Agent”), as noted in Auction Purchase & Sale Agreement, or as announced at the auction.
Seller shall pay, on the Closing Date, all of the cost of the preparation of the deed, any documentary stamps or transfer taxes on the deed and surtax, if any (exclusive of any that, under state or local laws, are imposed on the buyer or grantee), and certified and pending special assessment liens for which the work has been substantially completed, and Purchaser shall pay, on the Closing Date, any documentary stamps or transfer taxes on the deed and surtax, if any, that, under state or local laws, are imposed on the buyer or grantee, the cost of the Title Commitment, including, without limitation, the cost of any title searches or abstracts of the Property, and the premium for the Owner’s Policy, all recording costs, intangible tax on any mortgage, documentary stamps or tax on any note, pending special assessment liens for which the work has not been substantially completed, the cost of any inspections conducted by or for the benefit of Purchaser, including, but not limited to, any zoning, permitting or other certification that may be obtained by Purchaser or that may be required to be delivered to Purchaser by any governmental authority as a condition to the conveyance of the Property from Seller to Purchaser, and any other customary charges and costs of closing.
Information was gathered from reliable sources and is believed to be correct as of the date this material is published, however, this information has not been independently verified by sellers or auctioneers. Its accuracy is not warranted in any way. There is no obligation on the part of Sellers or Auctioneer to update this information. ALL ANNOUNCEMENTS MADE AT THE AUCTION TAKE PRECEDENCE OVER ALL ADVERTISING. The sellers do not have any liabilities whatsoever for any oral or written representations, warranties or agreements relating to the property except as expressly set forth in the Auction PSA. There is no obligation on the part of the Sellers to accept any backup bids in the event the high bid falls through.
